Top.Mail.Ru

Шипиловская ул., д. 20

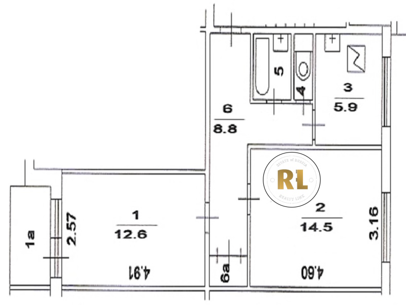
База каталог, Кол-во подъездов: 6, Имеется, II-49Д, Москва, Орехово-Борисово Северное, Площадь парковки: 0, Пассажирский лифт: 6, От метро: 1020, Южный, нет, Наименьшее кол-во этажей: 1, Наибольшее кол-во этажей: 9, Домодедовская, Кол-во помещений: 215, Кол-во нежилых помещений: 1, Год ввода в эксплуатацию: 1973, 2-комн, Кол-во жилых помещений: 214, D, дом 20, нет, да, да, да, да, да, Имеется, Грузовых лифтов: 0, Год постройки: 1973, Шипиловская улица, 37.708796, 55.617790
Свяжитесь со мной на счет цены
10 дн.
D55S617790L37S708796D

На карте


Условия сделки

Источник


Старт продаж

Возможно заинтересует