Top.Mail.Ru

улица Теплый Стан, д. 21, к. 2

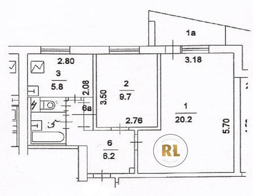
База каталог, Кол-во подъездов: 2, Имеется, I-515, Москва, Теплый Стан, Площадь парковки: 0, Пассажирский лифт: 2, От метро: 1730, Юго-Западный, нет, Наименьшее кол-во этажей: 9, Наибольшее кол-во этажей: 9, Тёплый Стан, Кол-во помещений: 177, Кол-во нежилых помещений: 1, Год ввода в эксплуатацию: 1973, 2-комн, Кол-во жилых помещений: 176, Не присвоен, дом 21, корпус 2, нет, да, да, да, нет, нет, Имеется, Грузовых лифтов: 0, Год постройки: 1973, улица Теплый Стан, 37.483059, 55.626909
Свяжитесь со мной на счет цены
10 дн.
D55S626909L37S483059D

На карте


Условия сделки

Источник


Старт продаж

Возможно заинтересует