Top.Mail.Ru

улица Авиаторов, д. 5, к. 3

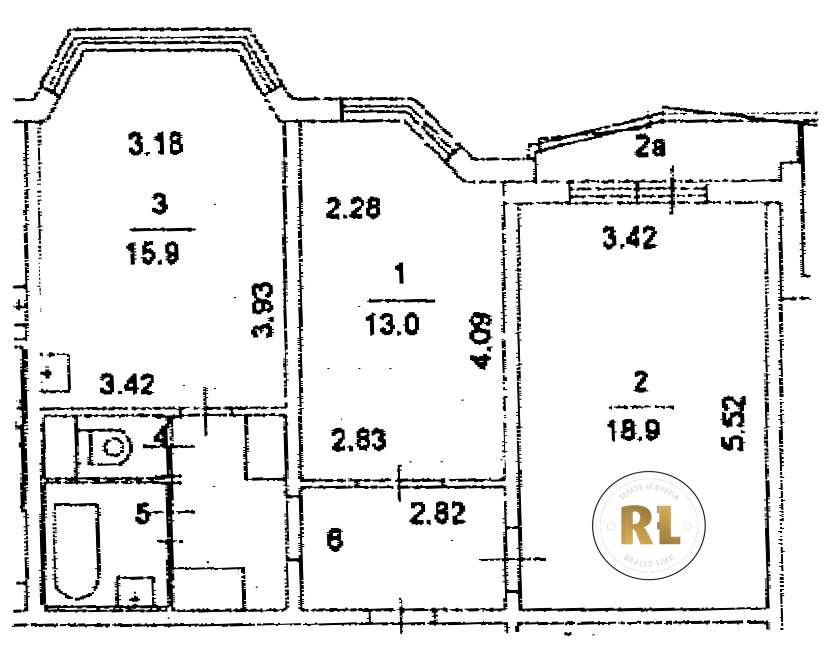
База каталог, Кол-во подъездов: 3, Отсутствует, П-44К, Москва, Солнцево, Площадь парковки: 0, Пассажирский лифт: 3, От метро: 1380, Западный, нет, Наименьшее кол-во этажей: 17, Наибольшее кол-во этажей: 17, Солнцево, Кол-во помещений: 196, Кол-во нежилых помещений: 4, Год ввода в эксплуатацию: 2014, 2-комн, Кол-во жилых помещений: 192, С, дом 5, корпус 3, нет, да, да, да, да, нет, Отсутствует, Грузовых лифтов: 3, Год постройки: 2014, улица Авиаторов, 37.397907, 55.639664
Свяжитесь со мной на счет цены
10 дн.
D55S639664L37S397907D

На карте


Условия сделки

Источник


Старт продаж

Возможно заинтересует