Top.Mail.Ru

Шипиловская ул., д. 39, к. 2

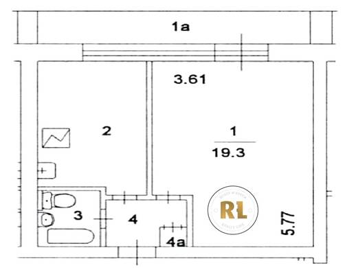
База каталог, Кол-во помещений: 168, нет, II-68, Москва, Зябликово, Пассажирский лифт: 3, От метро: 550, Южный, да, Наименьшее кол-во этажей: 1, Наибольшее кол-во этажей: 12, Шипиловская, Кол-во подъездов: 3, Год ввода в эксплуатацию: 1979, Кол-во нежилых помещений: 0, 1-комн, Кол-во жилых помещений: 168, дом 39, корпус 2, да, да, да, да, да, да, Грузовых лифтов: 3, Год постройки: 1979, Шипиловская улица, 37.735431, 55.623061
Свяжитесь со мной на счет цены
10 дн.
O55S623061L37S735431O

На карте


Условия сделки

Источник


Старт продаж

Возможно заинтересует