Top.Mail.Ru

улица Миклухо-Маклая, д. 39, к. 1

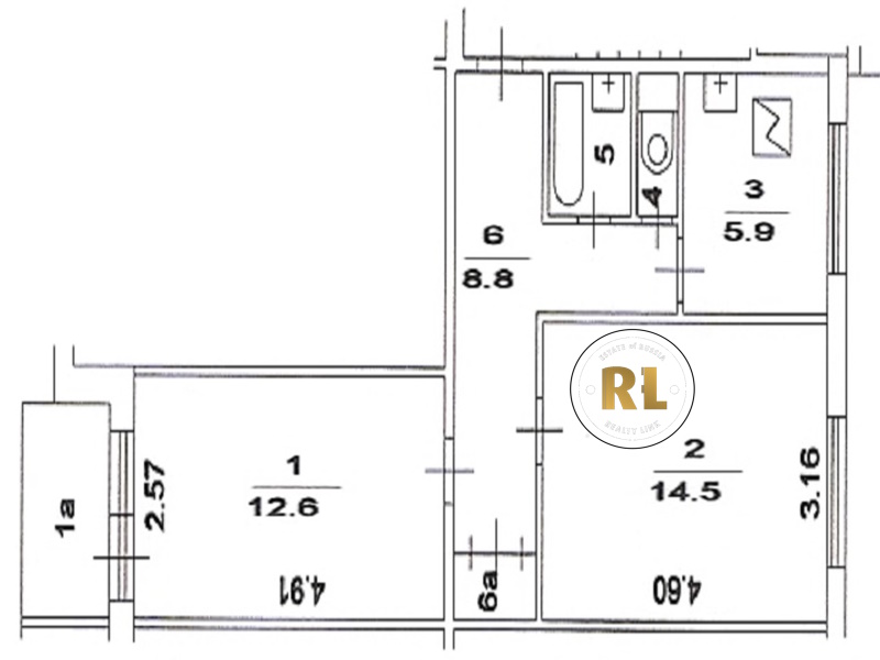
База каталог, Кол-во подъездов: 8, II-49-06, Москва, Коньково, Пассажирский лифт: 8, От метро: 480, Юго-Западный, да, Наименьшее кол-во этажей: 1, Наибольшее кол-во этажей: 9, Беляево, Кол-во помещений: 284, Кол-во нежилых помещений: 1, Год ввода в эксплуатацию: 1967, 2-комн, Кол-во жилых помещений: 283, дом 39, корпус 1, да, да, да, да, да, да, Имеется, Грузовых лифтов: 0, Год постройки: 1967, улица Миклухо-Маклая, 37.522863, 55.645395
Свяжитесь со мной на счет цены
10 дн.
D55S645395L37S522863D

На карте


Условия сделки

Источник


Старт продаж

Возможно заинтересует