Top.Mail.Ru

Балаклавский проспект, д. 38

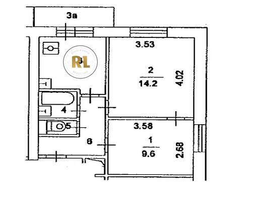
База каталог, Кол-во подъездов: 1, II-18, Москва, Зюзино, Площадь парковки: 0, Пассажирский лифт: 2, От метро: 1090, Юго-Западный, нет, Наименьшее кол-во этажей: 12, Наибольшее кол-во этажей: 12, Зюзино, Кол-во помещений: 84, Кол-во нежилых помещений: 0, Год ввода в эксплуатацию: 1965, 2-комн, Кол-во жилых помещений: 84, Не присвоен, дом 38, нет, да, да, да, да, да, Грузовых лифтов: 0, Год постройки: 1965, Балаклавский проспект, 37.576501, 55.647193
Свяжитесь со мной на счет цены
10 дн.
D55S647193L37S576501D

На карте


Условия сделки

Источник


Старт продаж

Возможно заинтересует