Top.Mail.Ru

Солнцевский проспект, д. 32

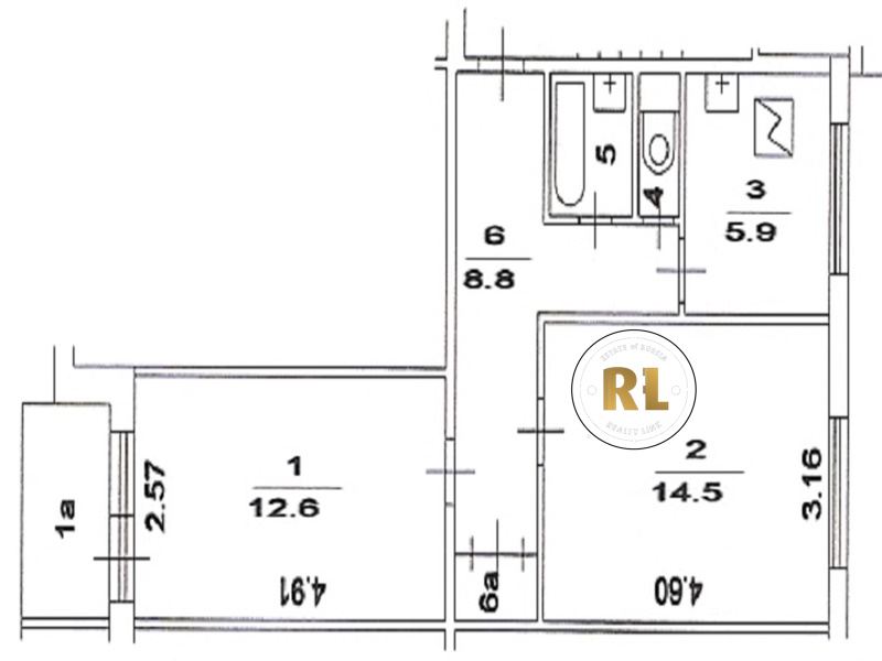
База каталог, Кол-во подъездов: 4, Имеется, II-49Д, Москва, Солнцево, Пассажирский лифт: 4, От метро: 1460, Западный, да, Наименьшее кол-во этажей: 9, Наибольшее кол-во этажей: 9, Солнцево, Кол-во помещений: 144, Кол-во нежилых помещений: 1, Год ввода в эксплуатацию: 1972, 2-комн, Кол-во жилых помещений: 143, дом 32, нет, да, да, да, да, нет, Имеется, Грузовых лифтов: 0, Год постройки: 1972, Солнцевский проспект, 37.411104, 55.648311
Свяжитесь со мной на счет цены
10 дн.
D55S648311L37S411104D

На карте


Условия сделки

Источник


Старт продаж

Возможно заинтересует