Top.Mail.Ru

Солнцевский проспект, д. 26, к. 1

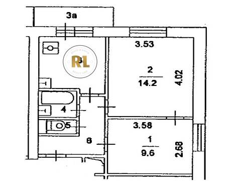
База каталог, Кол-во подъездов: 1, Имеется, II-18/22, Москва, Солнцево, Пассажирский лифт: 2, От метро: 1260, Западный, да, Наименьшее кол-во этажей: 12, Наибольшее кол-во этажей: 12, Солнцево, Кол-во помещений: 85, Кол-во нежилых помещений: 1, Год ввода в эксплуатацию: 1967, 2-комн, Кол-во жилых помещений: 84, дом 26, корпус 1, нет, да, да, да, да, нет, Имеется, Грузовых лифтов: 0, Год постройки: 1967, Солнцевский проспект, 37.408292, 55.650333
Свяжитесь со мной на счет цены
10 дн.
D55S650333L37S408292D

На карте


Условия сделки

Источник


Старт продаж

Возможно заинтересует