Top.Mail.Ru

Херсонская ул., д. 15

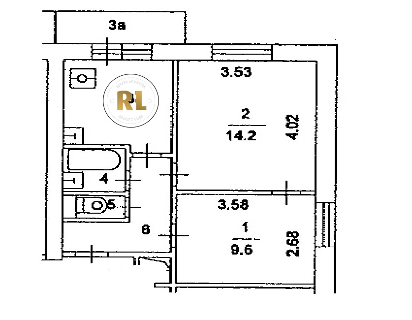
База каталог, Кол-во подъездов: 1, II-18-01-МН, Москва, Черемушки, Площадь парковки: 0, Пассажирский лифт: 2, От метро: 910, Юго-Западный, нет, Наименьшее кол-во этажей: 12, Наибольшее кол-во этажей: 12, Зюзино, Кол-во помещений: 84, Кол-во нежилых помещений: 0, Год ввода в эксплуатацию: 1965, 2-комн, Кол-во жилых помещений: 84, Не присвоен, дом 15, нет, да, да, да, да, да, Грузовых лифтов: 0, Год постройки: 1965, Херсонская улица, 37.563862, 55.651694
Свяжитесь со мной на счет цены
10 дн.
D55S651694L37S563862D

На карте


Условия сделки

Источник


Старт продаж

Возможно заинтересует