Top.Mail.Ru

улица Обручева, д. 37

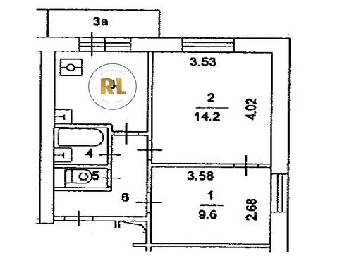
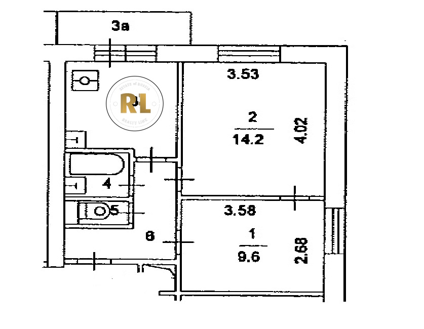
База каталог, Кол-во подъездов: 1, II-18-01-МН, Москва, Черемушки, Площадь парковки: 0, Пассажирский лифт: 2, От метро: 1250, Юго-Западный, нет, Наименьшее кол-во этажей: 12, Наибольшее кол-во этажей: 12, Калужская, Кол-во помещений: 84, Кол-во нежилых помещений: 0, Год ввода в эксплуатацию: 1965, 2-комн, Кол-во жилых помещений: 84, Не присвоен, дом 37, нет, да, да, да, да, нет, Грузовых лифтов: 0, Год постройки: 1965, улица Обручева, 37.555409, 55.652075
Свяжитесь со мной на счет цены
10 дн.
D55S652075L37S555409D

На карте


Условия сделки

Источник


Старт продаж

Возможно заинтересует