Top.Mail.Ru

Херсонская ул., д. 39

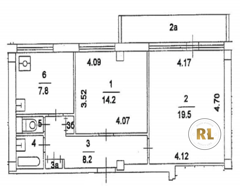
База каталог, Кол-во подъездов: 1, 1-МГ-601, Москва, Черемушки, Площадь парковки: 0, Пассажирский лифт: 1, От метро: 1140, Юго-Западный, нет, Наименьшее кол-во этажей: 16, Наибольшее кол-во этажей: 16, Зюзино, Кол-во помещений: 108, Кол-во нежилых помещений: 3, Год ввода в эксплуатацию: 1969, 2-комн, Кол-во жилых помещений: 105, Не присвоен, дом 39, нет, да, да, да, да, нет, Грузовых лифтов: 1, Год постройки: 1969, Херсонская улица, 37.559415, 55.654295
Свяжитесь со мной на счет цены
10 дн.
D55S654295L37S559415D

На карте


Условия сделки

Источник


Старт продаж

Возможно заинтересует