Top.Mail.Ru

улица Богданова, д. 10, к. 2

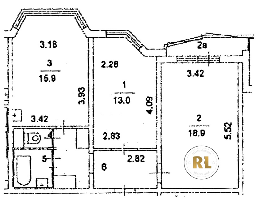
База каталог, Кол-во подъездов: 4, П-44T, Москва, Солнцево, Пассажирский лифт: 4, От метро: 710, Западный, да, Наименьшее кол-во этажей: 15, Наибольшее кол-во этажей: 17, Солнцево, Кол-во помещений: 255, Кол-во нежилых помещений: 1, Год ввода в эксплуатацию: 2003, 2-комн, Кол-во жилых помещений: 254, дом 10, корпус 2, нет, да, да, да, да, да, Грузовых лифтов: 4, Год постройки: 2003, улица Богданова, 37.398024, 55.655320
Свяжитесь со мной на счет цены
10 дн.
D55S655320L37S398024D

На карте


Условия сделки

Источник


Старт продаж

Возможно заинтересует