Top.Mail.Ru

улица Богданова, д. 16

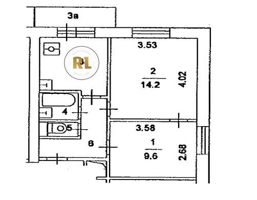
База каталог, Кол-во подъездов: 1, II-18, Москва, Солнцево, Пассажирский лифт: 1, От метро: 770, Западный, да, Наименьшее кол-во этажей: 12, Наибольшее кол-во этажей: 12, Говорово, Кол-во помещений: 81, Кол-во нежилых помещений: 1, Год ввода в эксплуатацию: 1969, 2-комн, Кол-во жилых помещений: 80, дом 16, нет, да, да, да, да, да, Грузовых лифтов: 0, Год постройки: 1969, улица Богданова, 37.407133, 55.656915
Свяжитесь со мной на счет цены
10 дн.
D55S656915L37S407133D

На карте


Условия сделки

Источник


Старт продаж

Возможно заинтересует