Top.Mail.Ru

улица 26-ти Бакинских Комиссаров, д. 2, к. 1

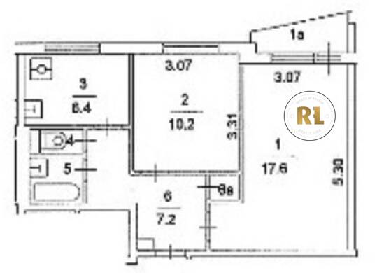
База каталог, Кол-во подъездов: 3, Отсутствует, II-57, Москва, Тропарево-Никулино, Площадь парковки: 0, Пассажирский лифт: 6, От метро: 1110, Западный, нет, Наименьшее кол-во этажей: 1, Наибольшее кол-во этажей: 12, Юго-Западная, Кол-во помещений: 143, Кол-во нежилых помещений: 0, Год ввода в эксплуатацию: 1971, 2-комн, Кол-во жилых помещений: 143, А, дом 2, корпус 1, нет, да, да, да, да, нет, Имеется, Грузовых лифтов: 0, Год постройки: 1971, улица 26-ти Бакинских Комиссаров, 37.494548, 55.657240
Свяжитесь со мной на счет цены
10 дн.
D55S657240L37S494548D

На карте


Условия сделки

Источник


Старт продаж

Возможно заинтересует