Top.Mail.Ru

улица Каховка, д. 35, к. 1

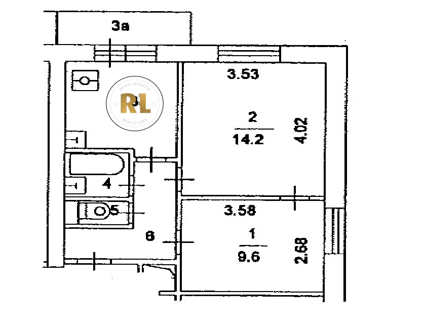
База каталог, Кол-во подъездов: 1, II-18-01-МН, Москва, Черемушки, Площадь парковки: 0, Пассажирский лифт: 2, От метро: 640, Юго-Западный, нет, Наименьшее кол-во этажей: 12, Наибольшее кол-во этажей: 12, Зюзино, Кол-во помещений: 85, Кол-во нежилых помещений: 1, Год ввода в эксплуатацию: 1965, 2-комн, Кол-во жилых помещений: 84, Не присвоен, дом 35, корпус 1, нет, да, да, да, да, да, Грузовых лифтов: 0, Год постройки: 1965, улица Каховка, 37.564644, 55.658236
Свяжитесь со мной на счет цены
10 дн.
D55S658236L37S564644D

На карте


Условия сделки

Источник


Старт продаж

Возможно заинтересует