Top.Mail.Ru

улица Богданова, д. 4

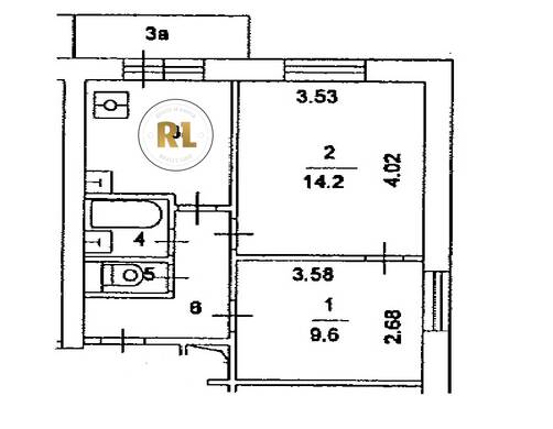
База каталог, Кол-во подъездов: 1, II-18, Москва, Солнцево, Пассажирский лифт: 2, От метро: 480, Западный, да, Наименьшее кол-во этажей: 12, Наибольшее кол-во этажей: 12, Говорово, Кол-во помещений: 83, Кол-во нежилых помещений: 1, Год ввода в эксплуатацию: 1972, 2-комн, Кол-во жилых помещений: 82, дом 4, да, да, да, да, да, да, Грузовых лифтов: 0, Год постройки: 1972, улица Богданова, 37.410663, 55.658632
Свяжитесь со мной на счет цены
10 дн.
D55S658632L37S410663D

На карте


Условия сделки

Источник


Старт продаж

Возможно заинтересует