Top.Mail.Ru

улица Каховка, д. 39, к. 1

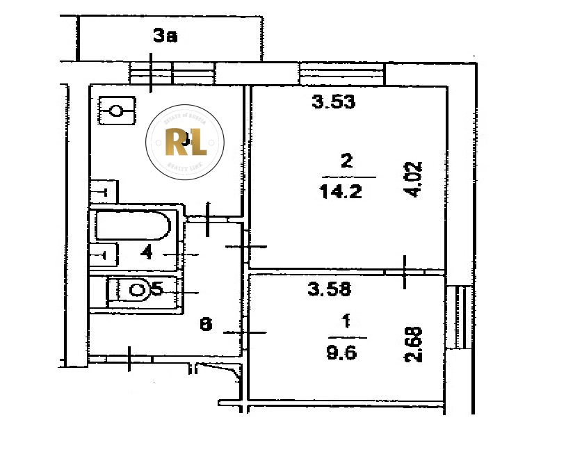
База каталог, Кол-во подъездов: 1, II-18-01-МН, Москва, Черемушки, Площадь парковки: 0, Пассажирский лифт: 2, От метро: 750, Юго-Западный, нет, Наименьшее кол-во этажей: 12, Наибольшее кол-во этажей: 12, Зюзино, Кол-во помещений: 84, Кол-во нежилых помещений: 0, Год ввода в эксплуатацию: 1964, 2-комн, Кол-во жилых помещений: 84, Не присвоен, дом 39, корпус 1, нет, да, да, да, да, да, Грузовых лифтов: 0, Год постройки: 1964, улица Каховка, 37.562847, 55.658855
Свяжитесь со мной на счет цены
10 дн.
D55S658855L37S562847D

На карте


Условия сделки

Источник


Старт продаж

Возможно заинтересует