Top.Mail.Ru

улица Перерва, д. 33

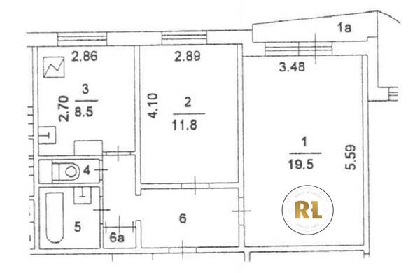
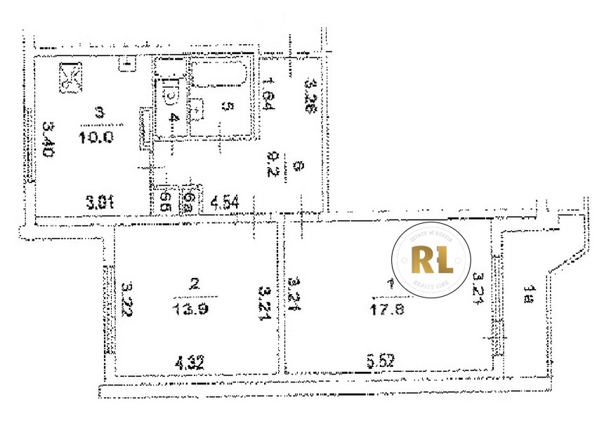
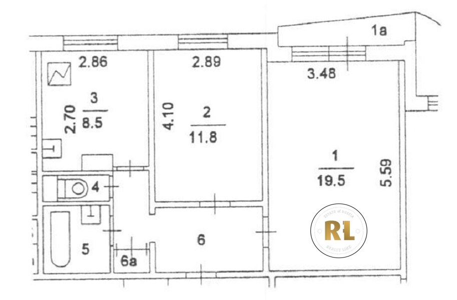
База каталог, Кол-во подъездов: 6, Отсутствует, П-44-1/17, Москва, Марьино, Площадь парковки: 0, Пассажирский лифт: 6, От метро: 690, Юго-Восточный, нет, Наименьшее кол-во этажей: 14, Наибольшее кол-во этажей: 17, Братиславская, Кол-во помещений: 768, Кол-во нежилых помещений: 412, Год ввода в эксплуатацию: 2000, 2-комн, Кол-во жилых помещений: 356, E, дом 33, нет, да, да, да, да, да, Отсутствует, Грузовых лифтов: 6, Год постройки: 1999, улица Перерва, 37.743345, 55.660028
14 200 000 Р
10 дн.
D55S660028L37S743345D
+

На карте


Условия сделки

Источник


Старт продаж