Top.Mail.Ru

Болотниковская ул., д. 40, к. 3

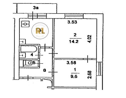
База каталог, Кол-во подъездов: 1, II-18-01/12, Москва, Зюзино, Площадь парковки: 0, Пассажирский лифт: 2, От метро: 1430, Юго-Западный, нет, Наименьшее кол-во этажей: 12, Наибольшее кол-во этажей: 12, Нахимовский проспект, Кол-во помещений: 84, Кол-во нежилых помещений: 0, Год ввода в эксплуатацию: 1966, 2-комн, Кол-во жилых помещений: 84, Не присвоен, дом 40, корпус 3, нет, да, да, да, да, нет, Имеется, Грузовых лифтов: 0, Год постройки: 1966, Болотниковская улица, 37.589069, 55.662831
Свяжитесь со мной на счет цены
10 дн.
D55S662831L37S589069D

На карте


Условия сделки

Источник


Старт продаж

Возможно заинтересует