Top.Mail.Ru

улица Перерва, д. 62, к. 1

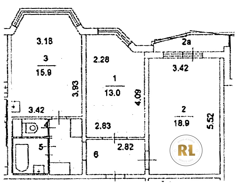
База каталог, Кол-во подъездов: 2, П-44T, Москва, Марьино, Пассажирский лифт: 2, От метро: 1140, Юго-Восточный, да, Наименьшее кол-во этажей: 14, Наибольшее кол-во этажей: 14, Братиславская, Кол-во помещений: 109, Кол-во нежилых помещений: 5, Год ввода в эксплуатацию: 2000, 2-комн, Кол-во жилых помещений: 104, дом 62, корпус 1, нет, да, да, да, да, нет, Имеется, Грузовых лифтов: 2, Год постройки: 2000, улица Перерва, 37.764941, 55.664309
Свяжитесь со мной на счет цены
10 дн.
D55S664309L37S764941D

На карте


Условия сделки

Источник


Старт продаж

Возможно заинтересует