Top.Mail.Ru

проспект Вернадского, д. 89, к. 1

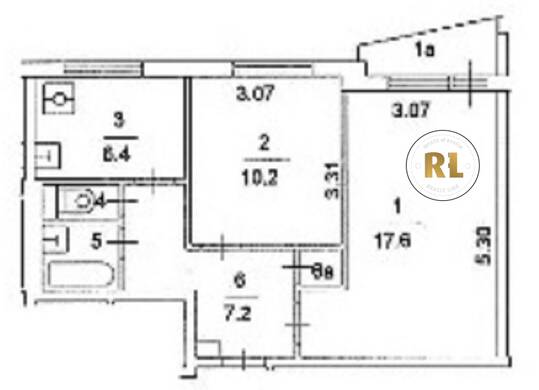
База каталог, Кол-во подъездов: 3, II-57-03/12Ю17, Москва, Тропарево-Никулино, Площадь парковки: 0, Пассажирский лифт: 6, От метро: 1040, Западный, нет, Наименьшее кол-во этажей: 12, Наибольшее кол-во этажей: 13, Юго-Западная, Кол-во помещений: 322, Кол-во нежилых помещений: 2, Год ввода в эксплуатацию: 1971, 2-комн, Кол-во жилых помещений: 320, Не присвоен, дом 89, корпус 1, нет, да, да, да, да, да, Грузовых лифтов: 0, Год постройки: 1971, проспект Вернадского, 37.498384, 55.666244
Свяжитесь со мной на счет цены
10 дн.
D55S666244L37S498384D

На карте


Условия сделки

Источник


Старт продаж

Возможно заинтересует