Top.Mail.Ru

улица Цюрупы, д. 11, к. 1

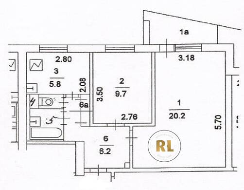
База каталог, Кол-во подъездов: 4, I-515, Москва, Черемушки, Площадь парковки: 0, Пассажирский лифт: 4, От метро: 1150, Юго-Западный, нет, Наименьшее кол-во этажей: 9, Наибольшее кол-во этажей: 9, Новые Черёмушки, Кол-во помещений: 144, Кол-во нежилых помещений: 0, Год ввода в эксплуатацию: 1976, 2-комн, Кол-во жилых помещений: 144, Не присвоен, дом 11, корпус 1, нет, да, да, да, да, нет, Грузовых лифтов: 0, Год постройки: 1976, улица Цюрупы, 37.571408, 55.666924
Свяжитесь со мной на счет цены
10 дн.
D55S666924L37S571408D

На карте


Условия сделки

Источник


Старт продаж

Возможно заинтересует