Top.Mail.Ru

Шоссейная ул., д. 76

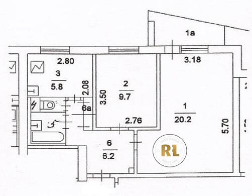
База каталог, Кол-во подъездов: 4, Отсутствует, I-515, Москва, Печатники, Площадь парковки: 0, Пассажирский лифт: 4, От метро: 2620, Юго-Восточный, нет, Наименьшее кол-во этажей: 9, Наибольшее кол-во этажей: 9, Печатники, Кол-во помещений: 144, Кол-во нежилых помещений: 0, Год ввода в эксплуатацию: 1974, 2-комн, Кол-во жилых помещений: 144, D, дом 76, нет, да, нет, нет, нет, нет, Имеется, Грузовых лифтов: 0, Год постройки: 1974, Шоссейная улица, 37.719037, 55.671077
11 400 000 Р
10 дн.
D55S671077L37S719037D
+

На карте


Условия сделки

Источник


Старт продаж