Top.Mail.Ru

улица Головачева, д. 11

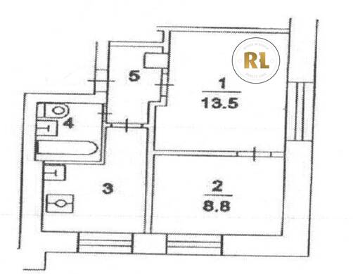
База каталог, Кол-во помещений: 143, Отсутствует, II-29, Москва, Люблино, Площадь парковки: 0, Пассажирский лифт: 4, От метро: 3500, Юго-Восточный, нет, Наименьшее кол-во этажей: 0, Наибольшее кол-во этажей: 9, Люблино, Кол-во подъездов: 4, Год ввода в эксплуатацию: 1970, Кол-во нежилых помещений: 0, 2-комн, Кол-во жилых помещений: 143, дом 11, нет, нет, нет, нет, нет, нет, Имеется, Грузовых лифтов: 0, Год постройки: 1970, улица Головачева, 37.808303, 55.673509
Свяжитесь со мной на счет цены
10 дн.
D55S673509L37S808303D

На карте


Условия сделки

Источник


Старт продаж

Возможно заинтересует