Top.Mail.Ru

улица Полбина, д. 60

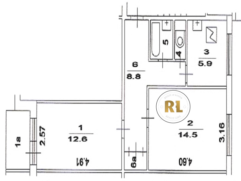
База каталог, Кол-во подъездов: 10, Имеется, II-49, Москва, Печатники, Площадь парковки: 0, Пассажирский лифт: 10, От метро: 2250, Юго-Восточный, нет, Наименьшее кол-во этажей: 9, Наибольшее кол-во этажей: 9, Печатники, Кол-во помещений: 358, Кол-во нежилых помещений: 0, Год ввода в эксплуатацию: 1970, 2-комн, Кол-во жилых помещений: 358, С, дом 60, нет, да, да, нет, нет, нет, Имеется, Грузовых лифтов: 0, Год постройки: 1970, улица Полбина, 37.724759, 55.673524
Свяжитесь со мной на счет цены
10 дн.
D55S673524L37S724759D

На карте


Условия сделки

Источник


Старт продаж

Возможно заинтересует