Top.Mail.Ru

улица Ремизова, д. 14, к. 1

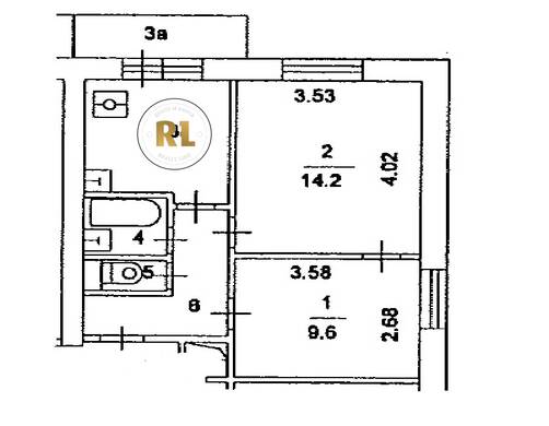
База каталог, Кол-во подъездов: 1, II-18, Москва, Котловка, Площадь парковки: 0, Пассажирский лифт: 2, От метро: 670, Юго-Западный, нет, Наименьшее кол-во этажей: 12, Наибольшее кол-во этажей: 12, Нагорная, Кол-во помещений: 84, Кол-во нежилых помещений: 0, Год ввода в эксплуатацию: 1970, 2-комн, Кол-во жилых помещений: 84, E, дом 14, корпус 1, нет, да, да, да, да, да, Грузовых лифтов: 0, Год постройки: 1970, улица Ремизова, 37.603343, 55.674458
Свяжитесь со мной на счет цены
10 дн.
D55S674458L37S603343D

На карте


Условия сделки

Источник


Старт продаж

Возможно заинтересует