Top.Mail.Ru

Мариупольская ул., д. 7

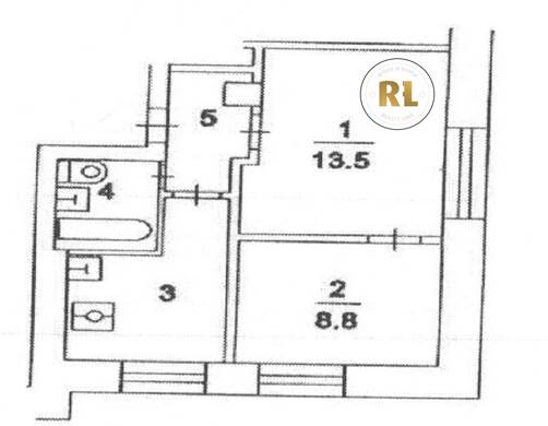
База каталог, Кол-во подъездов: 4, Отсутствует, II-29, Москва, Люблино, Пассажирский лифт: 4, От метро: 1360, Юго-Восточный, да, Наименьшее кол-во этажей: 0, Наибольшее кол-во этажей: 9, Люблино, Кол-во помещений: 0, Кол-во нежилых помещений: 0, Год ввода в эксплуатацию: 1974, 2-комн, Кол-во жилых помещений: 0, дом 7, нет, да, да, да, да, нет, Отсутствует, Грузовых лифтов: 0, Год постройки: 1974, Мариупольская улица, 37.744136, 55.675326
11 500 000 Р
10 дн.
D55S675326L37S744136D
+

На карте


Условия сделки

Источник


Старт продаж