Top.Mail.Ru

Краснодарская ул., д. 35

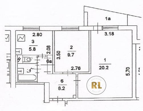
База каталог, Кол-во подъездов: 4, Имеется, I-515, Москва, Люблино, Пассажирский лифт: 4, От метро: 330, Юго-Восточный, да, Наименьшее кол-во этажей: 0, Наибольшее кол-во этажей: 9, Люблино, Кол-во помещений: 144, Кол-во нежилых помещений: 0, Год ввода в эксплуатацию: 1972, 2-комн, Кол-во жилых помещений: 144, дом 35, да, да, да, да, да, да, Имеется, Грузовых лифтов: 0, Год постройки: 1972, Краснодарская улица, 37.757674, 55.677758
Свяжитесь со мной на счет цены
10 дн.
D55S677758L37S757674D

На карте


Условия сделки

Источник


Старт продаж

Возможно заинтересует