Top.Mail.Ru

Новороссийская ул., д. 16, к. 2

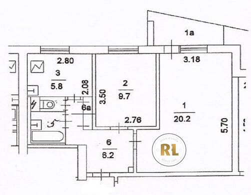
База каталог, Кол-во подъездов: 2, Отсутствует, I-515, Москва, Люблино, Пассажирский лифт: 2, От метро: 300, Юго-Восточный, да, Наименьшее кол-во этажей: 0, Наибольшее кол-во этажей: 9, Люблино, Кол-во помещений: 65, Кол-во нежилых помещений: 0, Год ввода в эксплуатацию: 1981, 2-комн, Кол-во жилых помещений: 65, дом 16, корпус 2, да, да, да, да, да, да, Имеется, Грузовых лифтов: 0, Год постройки: 1981, Новороссийская улица, 37.758859, 55.677971
Свяжитесь со мной на счет цены
10 дн.
D55S677971L37S758859D

На карте


Условия сделки

Источник


Старт продаж

Возможно заинтересует