Top.Mail.Ru

улица Полбина, д. 48

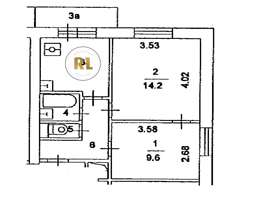
База каталог, Кол-во подъездов: 1, Отсутствует, II-18, Москва, Печатники, Площадь парковки: 0, Пассажирский лифт: 2, От метро: 1700, Юго-Восточный, нет, Наименьшее кол-во этажей: 12, Наибольшее кол-во этажей: 12, Печатники, Кол-во помещений: 84, Кол-во нежилых помещений: 0, Год ввода в эксплуатацию: 1969, 2-комн, Кол-во жилых помещений: 84, D, дом 48, нет, да, да, да, нет, нет, Имеется, Грузовых лифтов: 1, Год постройки: 1969, улица Полбина, 37.726879, 55.679072
Свяжитесь со мной на счет цены
10 дн.
D55S679072L37S726879D

На карте


Условия сделки

Источник


Старт продаж

Возможно заинтересует