Top.Mail.Ru

проспект Андропова, д. 28

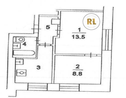
База каталог, Кол-во помещений: 54, II-29, Москва, Нагатино-Садовники, Площадь парковки: 35, Пассажирский лифт: 5, От метро: 1760, Южный, да, Наименьшее кол-во этажей: 9, Наибольшее кол-во этажей: 9, Кленовый бульвар, Кол-во подъездов: 5, Год ввода в эксплуатацию: 1965, Кол-во нежилых помещений: 0, 2-комн, Кол-во жилых помещений: 54, дом 28, нет, да, да, да, нет, нет, Грузовых лифтов: 0, Год постройки: 1965, проспект Андропова, 37.662623, 55.679976
Свяжитесь со мной на счет цены
10 дн.
D55S679976L37S662623D

На карте


Условия сделки

Источник


Старт продаж

Возможно заинтересует