Top.Mail.Ru

Совхозная ул., д. 18, к. 4

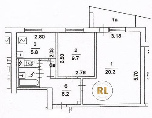
База каталог, Кол-во подъездов: 6, Отсутствует, I-515, Москва, Люблино, Пассажирский лифт: 6, От метро: 520, Юго-Восточный, да, Наименьшее кол-во этажей: 0, Наибольшее кол-во этажей: 9, Люблино, Кол-во помещений: 213, Кол-во нежилых помещений: 0, Год ввода в эксплуатацию: 1975, 2-комн, Кол-во жилых помещений: 213, дом 18, корпус 4, да, да, да, да, да, да, Имеется, Грузовых лифтов: 0, Год постройки: 1975, Совхозная улица, 37.766729, 55.680270
Свяжитесь со мной на счет цены
10 дн.
D55S680270L37S766729D

На карте


Условия сделки

Источник


Старт продаж

Возможно заинтересует