Top.Mail.Ru

Нагорная ул., д. 5, к. 3

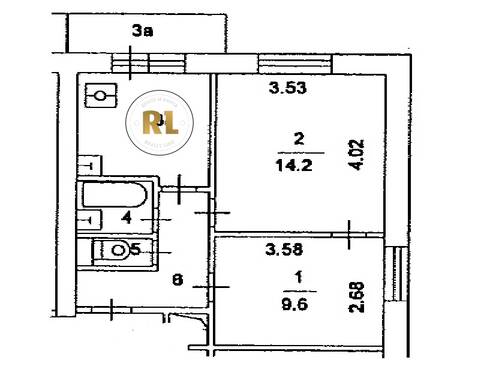
База каталог, Кол-во подъездов: 1, II-18-01-МН, Москва, Котловка, Площадь парковки: 0, Пассажирский лифт: 2, От метро: 1180, Юго-Западный, нет, Наименьшее кол-во этажей: 12, Наибольшее кол-во этажей: 12, Нагорная, Кол-во помещений: 84, Кол-во нежилых помещений: 0, Год ввода в эксплуатацию: 1970, 2-комн, Кол-во жилых помещений: 84, E, дом 5, корпус 3, нет, да, да, да, да, нет, Грузовых лифтов: 0, Год постройки: 1970, Нагорная улица, 37.613548, 55.681306
Свяжитесь со мной на счет цены
10 дн.
D55S681306L37S613548D

На карте


Условия сделки

Источник


Старт продаж

Возможно заинтересует