Top.Mail.Ru

Нагатинская набережная, д. 26

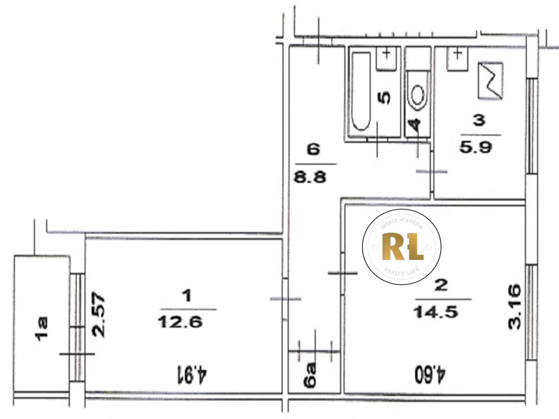
База каталог, Кол-во помещений: 215, II-49Д, Москва, Нагатино-Садовники, Площадь парковки: 0, Пассажирский лифт: 6, От метро: 2460, Южный, нет, Наименьшее кол-во этажей: 9, Наибольшее кол-во этажей: 9, Кленовый бульвар, Кол-во подъездов: 6, Год ввода в эксплуатацию: 1968, Кол-во нежилых помещений: 0, 2-комн, Кол-во жилых помещений: 215, дом 26, нет, да, да, нет, нет, нет, Грузовых лифтов: 0, Год постройки: 1968, Нагатинская набережная, 37.657485, 55.682600
Свяжитесь со мной на счет цены
10 дн.
D55S682600L37S657485D

На карте


Условия сделки

Источник


Старт продаж

Возможно заинтересует