Top.Mail.Ru

Шоссейная ул., д. 25

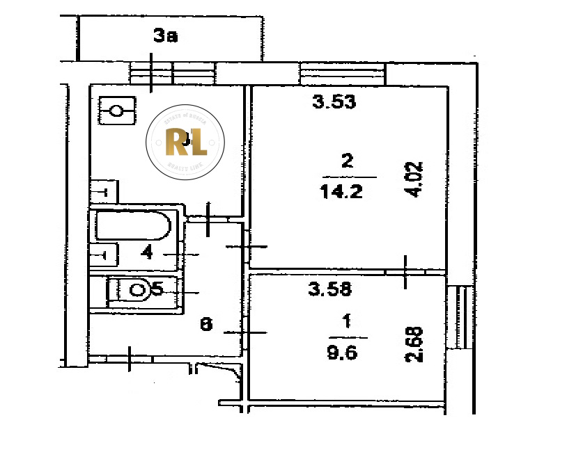
База каталог, Кол-во подъездов: 1, Отсутствует, II-18, Москва, Печатники, Площадь парковки: 0, Пассажирский лифт: 1, От метро: 1180, Юго-Восточный, нет, Наименьшее кол-во этажей: 12, Наибольшее кол-во этажей: 12, Печатники, Кол-во помещений: 84, Кол-во нежилых помещений: 0, Год ввода в эксплуатацию: 1969, 2-комн, Кол-во жилых помещений: 84, С, дом 25, нет, да, да, да, да, нет, Имеется, Грузовых лифтов: 1, Год постройки: 1969, Шоссейная улица, 37.724759, 55.683057
Свяжитесь со мной на счет цены
10 дн.
D55S683057L37S724759D

На карте


Условия сделки

Источник


Старт продаж

Возможно заинтересует