Top.Mail.Ru

улица Винокурова, д. 17, к. 3

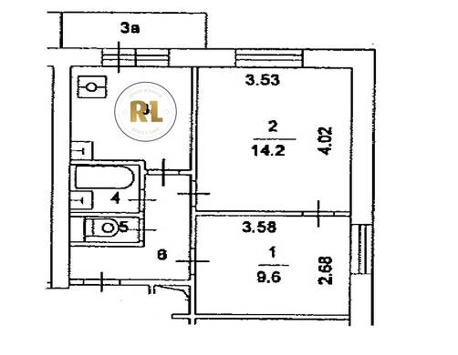
База каталог, Кол-во подъездов: 1, II-18-01/12, Москва, Котловка, Площадь парковки: 0, Пассажирский лифт: 2, От метро: 1070, Юго-Западный, нет, Наименьшее кол-во этажей: 12, Наибольшее кол-во этажей: 12, Крымская, Кол-во помещений: 84, Кол-во нежилых помещений: 0, Год ввода в эксплуатацию: 1965, 2-комн, Кол-во жилых помещений: 84, E, дом 17, корпус 3, нет, да, да, да, да, да, Грузовых лифтов: 0, Год постройки: 1965, улица Винокурова, 37.596731, 55.685579
Свяжитесь со мной на счет цены
10 дн.
D55S685579L37S596731D

На карте


Условия сделки

Источник


Старт продаж

Возможно заинтересует