Top.Mail.Ru

Шоссейная ул., д. 19, к. 2

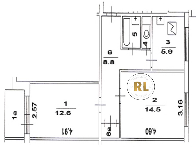
База каталог, Кол-во подъездов: 8, Имеется, II-49, Москва, Печатники, Площадь парковки: 0, Пассажирский лифт: 8, От метро: 700, Юго-Восточный, нет, Наименьшее кол-во этажей: 9, Наибольшее кол-во этажей: 9, Печатники, Кол-во помещений: 287, Кол-во нежилых помещений: 0, Год ввода в эксплуатацию: 1969, 2-комн, Кол-во жилых помещений: 287, С, дом 19, корпус 2, нет, да, да, да, да, да, Имеется, Грузовых лифтов: 0, Год постройки: 1969, Шоссейная улица, 37.726080, 55.686685
Свяжитесь со мной на счет цены
10 дн.
D55S686685L37S726080D

На карте


Условия сделки

Источник


Старт продаж

Возможно заинтересует