Top.Mail.Ru

Большая Черемушкинская ул., д. 5, к. 1

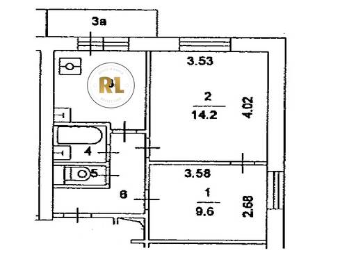
База каталог, Кол-во подъездов: 1, II-18-01/12, Москва, Котловка, Пассажирский лифт: 1, От метро: 670, Юго-Западный, да, Наименьшее кол-во этажей: 12, Наибольшее кол-во этажей: 12, Крымская, Кол-во помещений: 84, Кол-во нежилых помещений: 0, Год ввода в эксплуатацию: 1966, 2-комн, Кол-во жилых помещений: 84, D, дом 5, корпус 1, нет, да, да, да, да, да, Грузовых лифтов: 1, Год постройки: 1966, Большая Черемушкинская улица, 37.598259, 55.689157
Свяжитесь со мной на счет цены
10 дн.
D55S689157L37S598259D

На карте


Условия сделки

Источник


Старт продаж

Возможно заинтересует