Top.Mail.Ru

Шоссейная ул., д. 8

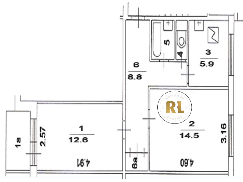
База каталог, Кол-во подъездов: 8, Имеется, II-49, Москва, Печатники, Площадь парковки: 0, Пассажирский лифт: 8, От метро: 360, Юго-Восточный, нет, Наименьшее кол-во этажей: 9, Наибольшее кол-во этажей: 9, Печатники, Кол-во помещений: 293, Кол-во нежилых помещений: 7, Год ввода в эксплуатацию: 1969, 2-комн, Кол-во жилых помещений: 286, D, дом 8, да, да, да, да, да, да, Имеется, Грузовых лифтов: 0, Год постройки: 1969, Шоссейная улица, 37.725954, 55.690065
12 000 000 Р
10 дн.
D55S690065L37S725954D
+

На карте


Условия сделки

Источник


Старт продаж