Top.Mail.Ru

Саранская ул., д. 2

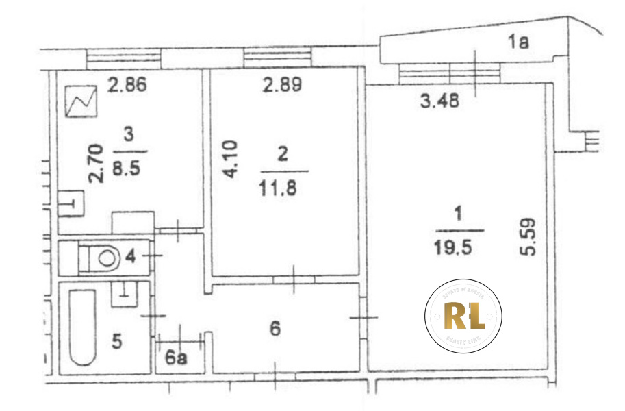
База каталог, Кол-во подъездов: 5, П-44, Москва, Выхино-Жулебино, Площадь парковки: 0, Пассажирский лифт: 5, От метро: 820, Юго-Восточный, нет, Наименьшее кол-во этажей: 10, Наибольшее кол-во этажей: 10, Жулебино, Кол-во помещений: 189, Кол-во нежилых помещений: 3, Год ввода в эксплуатацию: 1995, 2-комн, Кол-во жилых помещений: 186, С, дом 2, нет, да, да, да, да, да, Грузовых лифтов: 5, Год постройки: 1995, Саранская улица, 37.853039, 55.691800
Свяжитесь со мной на счет цены
10 дн.
D55S691800L37S853039D

На карте


Условия сделки

Источник


Старт продаж

Возможно заинтересует