Top.Mail.Ru

улица Раменки, д. 9, к. 2

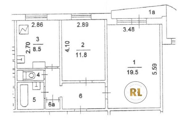
База каталог, Кол-во подъездов: 3, Имеется, П-44, Москва, Раменки, Площадь парковки: 0, Пассажирский лифт: 3, От метро: 650, Западный, нет, Наименьшее кол-во этажей: 17, Наибольшее кол-во этажей: 17, Раменки, Кол-во помещений: 202, Кол-во нежилых помещений: 0, Год ввода в эксплуатацию: 1985, 2-комн, Кол-во жилых помещений: 202, С, дом 9, корпус 2, нет, да, да, да, да, да, Отсутствует, Грузовых лифтов: 3, Год постройки: 1985, улица Раменки, 37.496749, 55.691866
Свяжитесь со мной на счет цены
10 дн.
D55S691866L37S496749D

На карте


Условия сделки

Источник


Старт продаж

Возможно заинтересует