Top.Mail.Ru

улица Раменки, д. 8, к. 1

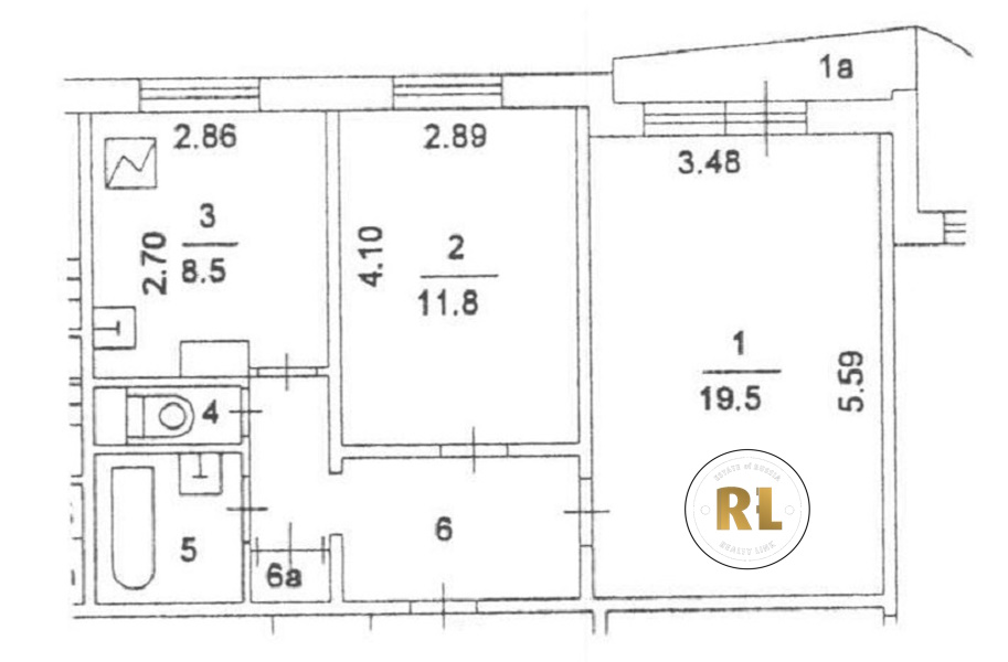
База каталог, Кол-во подъездов: 3, П-44, Москва, Раменки, Пассажирский лифт: 3, От метро: 600, Западный, да, Наименьшее кол-во этажей: 17, Наибольшее кол-во этажей: 17, Раменки, Кол-во помещений: 203, Кол-во нежилых помещений: 0, Год ввода в эксплуатацию: 1985, 2-комн, Кол-во жилых помещений: 203, С, дом 8, корпус 1, нет, да, да, да, да, да, Грузовых лифтов: 3, Год постройки: 1985, улица Раменки, 37.492320, 55.692430
Свяжитесь со мной на счет цены
10 дн.
D55S692430L37S492320D

На карте


Условия сделки

Источник


Старт продаж

Возможно заинтересует