Top.Mail.Ru

Очаковское шоссе, д. 15, к. 1

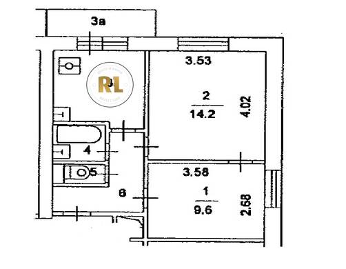
База каталог, Кол-во подъездов: 1, Отсутствует, II-18-31/12А, Москва, Очаково-Матвеевское, Площадь парковки: 130, Пассажирский лифт: 2, От метро: 1020, Западный, да, Наименьшее кол-во этажей: 1, Наибольшее кол-во этажей: 12, Аминьевская, Кол-во помещений: 0, Кол-во нежилых помещений: 0, Год ввода в эксплуатацию: 1971, 2-комн, Кол-во жилых помещений: 0, Не присвоен, дом 15, корпус 1, нет, да, да, да, да, да, Имеется, Грузовых лифтов: 0, Год постройки: 1971, Очаковское шоссе, 37.453405, 55.692744
Свяжитесь со мной на счет цены
10 дн.
D55S692744L37S453405D

На карте


Условия сделки

Источник


Старт продаж

Возможно заинтересует