Top.Mail.Ru

8-я ул. Текстильщиков, д. 2, к. 2

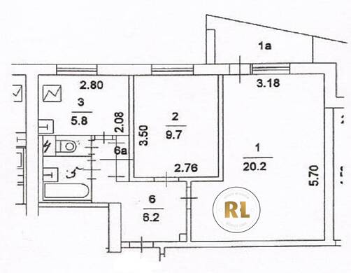
База каталог, Кол-во подъездов: 6, Имеется, I-515, Москва, Текстильщики, Площадь парковки: 0, Пассажирский лифт: 6, От метро: 830, Юго-Восточный, нет, Наименьшее кол-во этажей: 9, Наибольшее кол-во этажей: 9, Текстильщики, Кол-во помещений: 215, Кол-во нежилых помещений: 0, Год ввода в эксплуатацию: 1975, 2-комн, Кол-во жилых помещений: 215, Не присвоен, дом 2, корпус 2, нет, да, да, да, да, да, Имеется, Грузовых лифтов: 0, Год постройки: 1975, 8-я улица Текстильщиков, 37.738054, 55.704621
12 500 000 Р
10 дн.
D55S704621L37S738054D
+

На карте


Условия сделки

Источник


Старт продаж