Top.Mail.Ru

Нежинская ул., д. 13

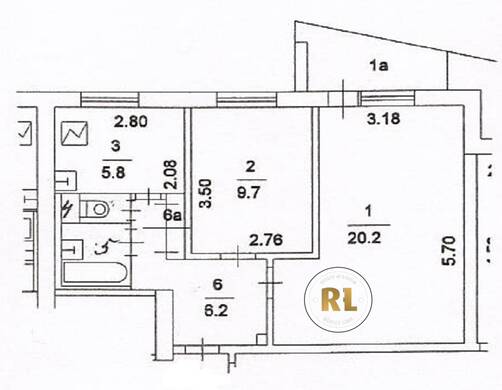
База каталог, Кол-во подъездов: 26, Имеется, I-515, Москва, Очаково-Матвеевское, Площадь парковки: 1649, Пассажирский лифт: 26, От метро: 1520, Западный, да, Наименьшее кол-во этажей: 1, Наибольшее кол-во этажей: 9, Аминьевская, Кол-во помещений: 4416, Кол-во нежилых помещений: 3504, Год ввода в эксплуатацию: 1972, 2-комн, Кол-во жилых помещений: 912, Не присвоен, дом 13, нет, да, да, да, да, нет, Имеется, Грузовых лифтов: 0, Год постройки: 1972, Нежинская улица, 37.470976, 55.706431
Свяжитесь со мной на счет цены
10 дн.
D55S706431L37S470976D

На карте


Условия сделки

Источник


Старт продаж

Возможно заинтересует