Top.Mail.Ru

Самаркандский бульвар, д. 6, к. 3

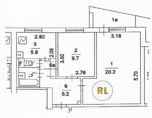
База каталог, Кол-во подъездов: 6, Отсутствует, I-515, Москва, Выхино-Жулебино, Пассажирский лифт: 6, От метро: 890, Юго-Восточный, да, Наименьшее кол-во этажей: 1, Наибольшее кол-во этажей: 9, Юго-Восточная, Кол-во помещений: 217, Кол-во нежилых помещений: 1, Год ввода в эксплуатацию: 1975, 2-комн, Кол-во жилых помещений: 216, E, дом 6, корпус 3, нет, да, да, да, да, да, Имеется, Грузовых лифтов: 0, Год постройки: 1975, Самаркандский бульвар, 37.827266, 55.706944
Свяжитесь со мной на счет цены
10 дн.
D55S706944L37S827266D

На карте


Условия сделки

Источник


Старт продаж

Возможно заинтересует