Top.Mail.Ru

Рязанский проспект, д. 82, к. 3

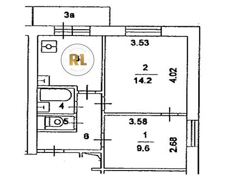
База каталог, Кол-во подъездов: 1, Отсутствует, II-18-01/12, Москва, Выхино-Жулебино, Пассажирский лифт: 2, От метро: 820, Юго-Восточный, да, Наименьшее кол-во этажей: 1, Наибольшее кол-во этажей: 12, Юго-Восточная, Кол-во помещений: 84, Кол-во нежилых помещений: 0, Год ввода в эксплуатацию: 1970, 2-комн, Кол-во жилых помещений: 84, Не присвоен, дом 82, корпус 3, нет, да, да, да, да, да, Имеется, Грузовых лифтов: 0, Год постройки: 1970, Рязанский проспект, 37.825820, 55.707836
10 150 000 Р
10 дн.
D55S707836L37S825820D
+

На карте


Условия сделки

Источник


Старт продаж