Top.Mail.Ru

5-й Рощинский проезд, д. 7/8

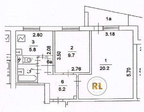
База каталог, Кол-во подъездов: 4, Отсутствует, I-515, Москва, Даниловский, Площадь парковки: 0, Пассажирский лифт: 4, От метро: 920, Южный, нет, Наименьшее кол-во этажей: 9, Наибольшее кол-во этажей: 9, Тульская, Кол-во помещений: 138, Кол-во нежилых помещений: 9, Год ввода в эксплуатацию: 1979, 2-комн, Кол-во жилых помещений: 129, С, дом 7/8, нет, да, да, да, да, да, Имеется, Грузовых лифтов: 0, Год постройки: 1979, 5-й Рощинский проезд, 37.613898, 55.708617
Свяжитесь со мной на счет цены
10 дн.
D55S708617L37S613898D

На карте


Условия сделки

Источник


Старт продаж

Возможно заинтересует