Top.Mail.Ru

Рязанский проспект, д. 80, к. 3

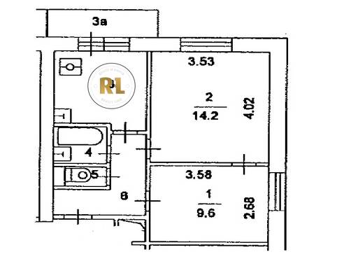
База каталог, Кол-во подъездов: 2, Отсутствует, II-18-31/12А, Москва, Выхино-Жулебино, Пассажирский лифт: 4, От метро: 650, Юго-Восточный, да, Наименьшее кол-во этажей: 1, Наибольшее кол-во этажей: 12, Юго-Восточная, Кол-во помещений: 168, Кол-во нежилых помещений: 0, Год ввода в эксплуатацию: 1970, 2-комн, Кол-во жилых помещений: 168, E, дом 80, корпус 3, нет, да, да, да, да, да, Имеется, Грузовых лифтов: 0, Год постройки: 1970, Рязанский проспект, 37.823080, 55.708795
Свяжитесь со мной на счет цены
10 дн.
D55S708795L37S823080D

На карте


Условия сделки

Источник


Старт продаж

Возможно заинтересует