Top.Mail.Ru

улица Петра Романова, д. 2

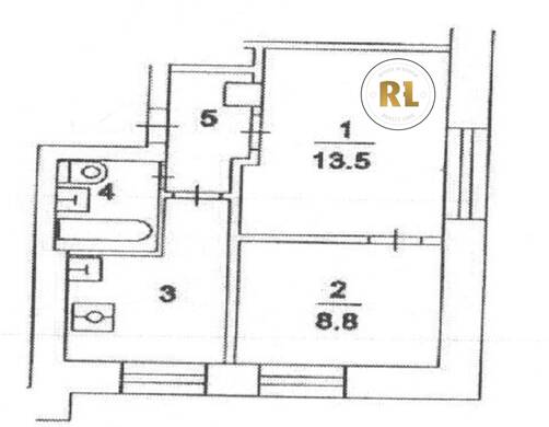
База каталог, Кол-во подъездов: 7, Отсутствует, II-29, Москва, Южнопортовый, Площадь парковки: 0, Пассажирский лифт: 7, От метро: 430, Юго-Восточный, нет, Наименьшее кол-во этажей: 8, Наибольшее кол-во этажей: 8, Дубровка, Кол-во помещений: 205, Кол-во нежилых помещений: 9, Год ввода в эксплуатацию: 1961, 2-комн, Кол-во жилых помещений: 196, Не присвоен, дом 2, да, да, да, да, да, да, Отсутствует, Грузовых лифтов: 0, Год постройки: 1961, улица Петра Романова, 37.679412, 55.709713
15 499 000 Р
10 дн.
D55S709713L37S679412D
+

На карте


Условия сделки

Источник